Välkommen att delta i förhandlingsanvisningen för en tomt strategiskt till utmed väg E12. Vi söker dig som är intresserad av att bygga restaurang och/eller handel i Storumans samhälle utmed väg E12.
Här finns utvecklingsmöjligheter för restaurang och handel. Vi hoppas du är intresserad. Varmt välkommen till förhandlingsanvisningen för del av fastigheten Fiskaren 3 i Storuman!




Storuman
Storuman är en attraktiv kommun i södra Lappland där vidderna är stora, tempot mänskligt och naturen alltid nära. Här möts fjäll, skog, sjöar och älvar i ett landskap som skapar både ro och möjligheter – för boende, företagare och besökare. I dag bor omkring 5600 invånare i kommunen och vi har en tydlig framtidstro och en ambition att växa. Kommunen arbetar aktivt för att skapa goda förutsättningar för ett långsiktigt och hållbart samhällsbyggande.
Logistik
Tätorten Storuman fungerar som en naturlig knutpunkt för trafik, handel och service i regionen då två europavägar och två järnvägsstråk möts. Detta erbjuder goda förutsättningar för företagsetableringar med behov av synlighet, tillgänglighet och logistik.
Väg E12 genom Storuman är en strategiskt avgörande transportled eftersom den binder samman inlandet med både kust och Atlantkust i Norge. När turistorterna Tärnaby, Hemavan och Kittelfjäll fortsätter att växa ökar trafikmängden markant, inte bara under högsäsong utan året runt.
Den nya färjeförbindelsen mellan Vasa och Umeå stärker E12:s roll ytterligare genom att skapa en tydlig väst–östlig korridor mellan Finland, Sverige och Norge. Detta gör vägen till en del av ett internationellt stråk för både turism och handel.
Utbyggnaden av en ny internationell flygplats i Mo i Rana innebär dessutom att E12 får ökad betydelse som länk mellan flyg, väg och turism. Flygplatsen kommer att locka internationella besökare.
Markområdet
Markområdet är lättillgängligt och plant, vilket skapar bra förutsättningar för effektiv exploatering och flexibel planering. Området präglas av öppna, generösa vyer och stora sammanhängande grönytor som ger en luftig och attraktiv miljö. Det öppna landskapet skapar ett tydligt visuellt intryck, god orienterbarhet och möjligheter att exponera byggnader eller verksamheter på ett tilltalande sätt. Det tar cirka 5 minuters promenad till Centrum
Bakgrund
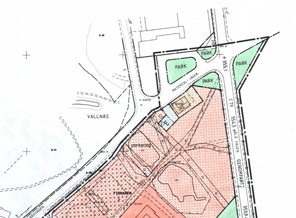
Markområdet gäller del av fastigheten Fiskaren 3 som framgår av kartbilderna ovan. Sedan 40-talet har röbrokiosken legat här som drabbades svårt av en brand under vintern 2025, därefter har byggnaden rivits. Tidigare arrende har sagts upp och markområdet är nu tillgängligt för annan exploatering.
De närmaste grannarna till markområdet är skolor i öst och syd. Ett stenkast ifrån ligger badsjöområdet med bad, rekreation, utegym, och camping, norr om markområdet ligger en handelstomt med fordonsförsäljning.
Markområdet är bland annat detaljplanerad som handel med en yta på cirka 568m2, marken runtom är planlagd som transformatorstation, Skola och gata. Kommunen är positiv till en eventuell detaljplaneändring som leder till att området utvecklas till främst restaurang och/eller handel. Fördjupade översiktsplanen för Storuman – Stensele 2011 anger markområdet som ”Annan samhällsservice”
Generellt
Markområdet bedöms kunna inrymma två byggnader för restaurang eller handel.
Intressenten ansvarar för samtliga kostnader som uppstår i samband med förhandlingen, vilket innebär att kommunen inte lämnar någon ersättning för inlämnade bidrag. Kommunen förbehåller sig rätten att avbryta projektet utan någon rätt för exploatörerna att få ersättning för nedlagda kostnader.
Det står intressenten fritt att välja om man vill lämna in förslag med restaurang eller handel. Det är också möjligt att lämna in två förslag med olika typer.
Kommunen har fri prövningsrätt av inlämnade bidrag.
Inbjudan till förhandlingsanvisningen har skickats till flertalet olika aktörer på marknaden
Tidsplan

Teknisk försörjning
Kommunens anslutningspunkt för vatten och avlopp, samt optofiber kommer att finnas utmed Vallnäsvägen/materialvägen. Övriga anslutningar såsom elektricitet, fjärrvärme etc enligt respektive ledningsägare.
Parkering
Parkering ska lösas inom tomtmark. Placering och antal ska framgå av anbudet. Storumans kommun har en av Kommunfullmäktige antagen Parkeringspolicy.

GC-väg
En GC-väg löper genom markområdet och kan utgå/tas bort vid framtida exploatering.
Allmännyttiga ledningar
Genom området löper flertalet olika ledningar och kablar, vilket i första hand ska lämnas orörda. Om dessa behöver flyttas kommer kostnaden åligga intressenten. Dessa kommer säkras med servitut vid behov.
Byggnadskrav
Kommunen kommer ställa krav på byggnationer, om dessa inte utförs inom en viss tid kommer markområdet återgå i kommunens ägo.
Vite
Vite kommer tas ut vid avtalsbrott gällande byggnadskravet ovan.
Lantmäterikostnader
Lantmäterikostnader som uppstår vid markförvärv av markområdet bekostas av intressenten.
Plankostnader
Plan- och utredningskostnader för ny detaljplans framtagande bekostas av intressenten.
Gestaltning
Förhandlingsbidragens utformning och arkitektur kommer att viktas tyngre än priset vid utvärderingen av inkomna förhandlingsbidrag.
Det finns möjlighet att föreslå såväl handel som restaurang på markområdet.
En trivsam och inbjudande utemiljö med mycket träd och grönska som knyter an till badsjöområdet är stor vikt. Att det ser även ser inbjudande ut från väg E12 beaktas också i bedömningen.
Bedömningsgrunder
Kommunen kommer basera sin bedömning på förslagets utformning och hur man anser att det är anpassat till platsen. Samt tänkta verksamheter/markens användning och pris kommer att vägas in i bedömningen enligt nedanstående viktning.
- Gestaltning – 50 procent
- Verksamhet/Användning 25 procent
- Pris – 25 procent
Förhandlingsbidraget
Bidraget ska innehålla:
· Intressentens anmälan om intresse att deltaga i förhandlingen samt behörig kontaktperson och uppgifter om intressenten och dess organisation
· Beskrivning av projektet
· Totalt antal kvadratmeter fastighetsyta
· Fasadskisser, planer och andra lämpliga illustrationer
· Utemiljö
· Markpris, se nedan
Markpris
Kommunen har gällande taxa för rå tomtmark med handelsändamål i tätorten att förhålla sig till. Då Markområdet till stor del redan är plan och finterraserad, gör att markområdets lägsta acceptpris är:
· 120 kronor per kvadratmeter.
Om intressenten i stället önskar arrendera markområdet är kommunens lägsta acceptpris: 5kr/m2 för varje arrendeår.
Anslutningsavgifter tillkommer.
Anbudspriset ska vara fast till och med 2026-12-31. Tecknas avtal efter denna tidpunkt kommer priset att räknas upp med KPI (okt 2026 ) från den 1 januari 2027 tills tiden för avtalets tecknande.
Markanvisningsavtal, köpeavtal och arrendeavtal
Beroende på intressentens önskemål om att behålla befintlig detaljplan, ändra detaljplanen eller enbart arrendera markområdet så sker något av nedanstående när vinnaren av förhandlingsanvisningen utsetts:
Ett villkorat markanvisningsavtal som beslutas av kommunstyrelsen tecknas. Därefter startar detaljplaneprocessen.
Ett köpeavtal på tomten med befintlig detaljplan som beslutas av kommunstyrelsen tecknas och intressenten köper markområdet.
Ett arrendeavtal som beslutas av kommunstyrelsen tecknas på befintligt tomt med befintlig detaljplan.
Inlämning av bidrag
Förhandlingsbidraget ska skickas till kommunstyrelsens mail på ks@storuman.se och märkas med ärendenummer KS/2026:92
Anbudet ska vara kommunen tillhanda senast måndag 13 april.
Underlag och frågor
Underlag och frågor finns på kommunens hemsida:
https://www.storuman.se/kommun/Naringsliv--arbete/Mark-och-lokaler/fiskaren-3/
och kan även beställas via ks@storuman.se, märk med ärendenummer KS/2026:92
För att alla exploatörer/intressenter ska få samma information läggs relevanta frågor och svar upp på kommunens hemsida löpande.
https://www.storuman.se/kommun/Naringsliv--arbete/Mark-och-lokaler/fiskaren-3/fiskaren-3-fraga-svar/
Underlag att begära ut:
Inbjudan förhandlingsanvisning
Plankarta och planbeskrivning, nr 2421-P93/3
Översiktsplan
Baskarta i pdf och dwg
Anslutningspunkt VA och Optofiber
Bilder tagna vintern 2026.
Visning
För visning av fastigheten kontakta mark- och exploateringsingenjör Tim Sehlström eller Anton Stenvall, teknisk chef på telefon 0951-14000 eller via e-post tim.sehlstrom@storuman.se.
Sista dag att få ut underlag, ställa frågor eller visning är fredag den 3 april
Markanvisning
En markanvisning innebär att en intressent/exploatör under en viss tid och på givna villkor får rätt att ensam förhandla med en kommun om att köpa ett markområde för att utveckla det.
För att välja vem som ska få markanvisningen anordnar kommunen en tävling eller förhandling, dessa är öppna för alla. Den som vill vara med att utveckla fastigheten Fiskaren 3 får lämna in ett eller fler bidrag. Kommunen bedömer förslagen utifrån givna kriterier. Det formella beslutet fattas sedan av kommunstyrelsen genom godkännande av försäljningen under förutsättning att eventuell ny detaljplan vinner laga kraft.